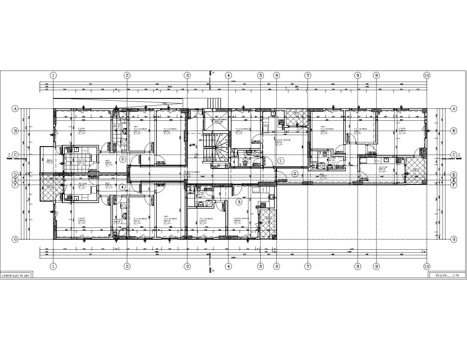
Belediye Ruhsat Projelerini Çizmiş Olduğumuz SÜLEYMANOĞULLARI İNŞAAT’ a ait 15 Dairelik Apartman Mimari Proje
İli: SAKARYA
İlçesi: HENDEK
Mahalle:MAHMUTBEY
Belediye Ruhsat Projelerini Çizmiş Olduğumuz SÜLEYMANOĞULLARI İNŞAAT’ a ait 15 Dairelik Apartman Mimari Proje
İli: SAKARYA
İlçesi: HENDEK
Mahalle:MAHMUTBEY